海と一体となるビーチフロントで、夕陽をまとう。一日の終わりが最も美しい場所
UMITOは、ブランドの新たなフラグシップモデルとなる3棟のUMITOヴィラプロジェクトを始動いたしました。
第一弾「UMITO 瀬底島 グロット」、第二弾「UMITO 鎌倉 稲村ヶ崎」に続くフラグシップモデル第三弾として、「UMITO 宮古島 サンセットビーチ」の第1期販売を本日2026年1月9日より開始いたします。
本施設は2027年秋頃の開業を予定しており、現在開発を進めております。

「UMITO 宮古島 サンセットビーチ」公式ページはこちら
※資料請求は専用フォームにて受け付けております。
資料請求フォームはこちら
海とともに暮らす時間が日常になる、宮古島という選択

「UMITO 宮古島 サンセットビーチ」は、日本有数のリゾートアイランドとして知られる宮古島に誕生します。島内に高い山が少ない宮古島では、どこにいても空と大地、そして海の広がりを身近に感じることができます。
「一生に一度は見たい絶景」として世界的にも知られる、ミヤコブルー。
波打ち際のすぐそばにまで密生するサンゴ礁が描き出す、幾重にも重なる青のグラデーション。
サラサラときめ細やかな白砂の浜、そして島全体を茜色に染め上げるサンセット。
それらすべてが重なり合い、宮古島ならではの多層的な色彩景観を形づくっています。
透明度の高い海と穏やかな風土に恵まれた宮古島は、静けさの中で心をほどく滞在から、マリンアクティビティをはじめとするアクティブな体験まで、訪れる人それぞれのスタイルを受け入れてくれる場所です。
また、島の暮らしに根付いた独自の文化や食、素朴で温かな人々の存在も、この地ならではの魅力です。
日常を離れ、心身ともに解き放たれていく——。宮古島の美しい海と一体となる究極のビーチフロントで、夕陽に染まり、刻々と移ろう海と空の中に身を委ねる。そんなかけがえのない時間を叶える別邸、「UMITO 宮古島 サンセットビーチ」がここに誕生します。

究極のビーチフロントに佇む白亜の邸宅
自然と共生するサステナブルな設計を取り入れた本施設は、訪れる人それぞれのライフスタイルに寄り添い、多様な過ごし方を可能にします。
その造形美は、まるでひとつのアートピースのように風景の中に佇み、上質で洗練された滞在体験を演出します。
テラスから階段を降りると、目の前にはエメラルドグリーンの海が広がるビーチ。
白砂の浜辺では、刻一刻と表情を変える美しい夕陽が海と空を染め上げ、波音と潮風に包まれながら、心をほどくひとときをお過ごしいただけます。
自然と共鳴する、空間のアート
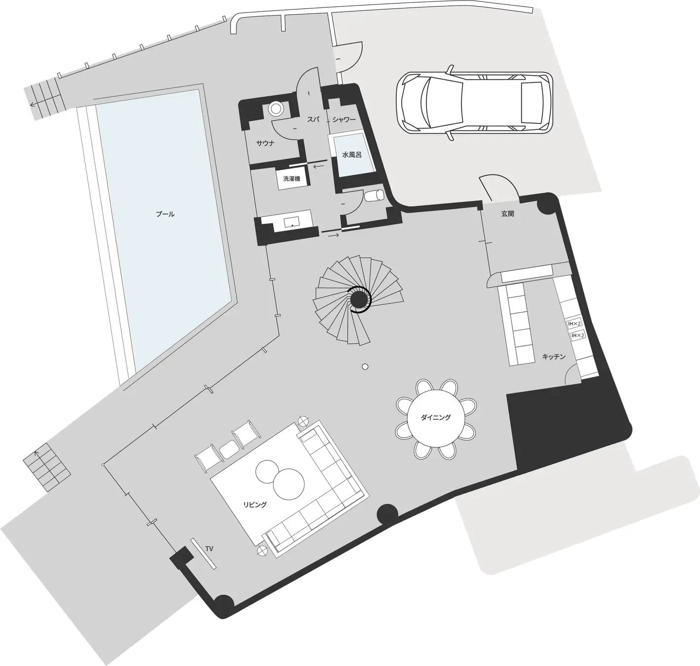
Living・Dining

逆円錐のフォルムと、有機的な曲線を描く螺旋階段が象徴的なリビング・ダイニング。
大きな窓越しには宮古島の輝く海が広がり、波音がやさしく響き渡ります。
芸術的なスケールを備えた空間は、日中は海と空の青を映し込み、やがて夕刻には茜色の光に包まれながら、時間の移ろいとともに、まったく異なる表情を描き出します。
曲線美と生命感を宿した螺旋階段は、空間に静かな存在感をもたらすアートピース。
開放感のあるリビングでは、仲間や家族、パートナーと語らい、穏やかで満ち足りた時間に身を委ねることができます。

Bedroom

マスターベッドルーム1室、ゲストルーム2室を用意。
景色を主役に据えた3つのベッドルームは、それぞれ異なる表情を愉しみながら、ただ海とともに過ごすための場所です。
Facility

3つのベッドルームすべてに専用のバスルームを完備。
海を望むジャグジーでは、波音に包まれながら日頃の疲れを癒やし心身を解きほぐす、優雅なリラクゼーションタイムをお楽しみいただけます。
Infinity Pool

海と空へと境界なく溶け込む、インフィニティプール。
水面は水平線とひと続きになり、刻々と表情を変える宮古島の紺碧の海と空を映し込みます。
ただ身を委ねるだけで、日常の緊張は静かにほどけ、この場所でしか味わえない上質で満ち足りた贅沢な時間がゆるやかに流れていきます。
Riccardo Tossani氏が描く、雄大な海景と呼応する建築
「UMITO 宮古島 サンセットビーチ」の設計は、国際的に高い評価を受ける建築家 Riccardo Tossani氏 が担当。UMITOが掲げる「海と共に過ごす別邸」という思想を、建築として純度高く体現できる存在として、これまで数々のUMITOプロジェクトに参画してきました。
本施設は、宮古島の自然の魅力を、ひとつの場で堪能するという構想のもとに生まれた空間です。
美しい夕陽が訪れる白砂のビーチ上に佇み、島が織りなす海と空、光と影のグラデーションを余すことなく味わう邸宅として設計されています。
「この建物は、ソリッド(塊)とボイド(吹き抜け)のバランスで形成されています。有機的な印象を持ち、まるで敷地から上向きに、夕陽に向かって伸びていくような形状です」
——という氏の言葉の通り、逆円錐形のフォルムは生命感を宿し、ユニークでありながら洗練された佇まいを生み出しています。
建築には、「明」と「暗」、「外」と「中」といった対比を融合する試みが随所に取り入れられています。白く反射する外観と、陰影を帯びた内部空間のコントラストは、南国の暑さから守られる快適さを想起させます。
印象的な螺旋階段は、機能的でありながらアートピースのような存在。
天井の高い開放的な空間の中で、琉球石灰岩などの上質な素材、自然換気や省エネルギー機器を採用し、サステナブルで心地よい居住性を実現しています。
テラスから階段を降りると、柔らかな白砂のビーチへとシームレスにつながり、白浜さえも室内空間の一部のように感じられます。
紺碧の海がきらめく宮古島の地において、自然と建築が穏やかに溶け合うこの「UMITO 宮古島 サンセットビーチ」は、この島だからこそ成立する、唯一無二のラグジュアリー体験を提供します。
建築家 Riccardo Tossani
オーストラリア生まれ。
ハーバード大学大学院都市計画建築デザイン修士課程修了。
1997年にRiccardo Tossani Architectureを設立。国際的に活躍する建築家。
Riccardo Tossani Architectureは、自然や土地の文脈を丁寧に読み解きながら、洗練された現代建築を手がける建築設計事務所です。
その多彩な実績は世界的な建築・デザインメディアにも数多く取り上げられています。
日本においては、現在のニセコの景観づくりに大きく関わってきた建築家として高い評価を受け、「ニセコの立役者」としての認知度も高い存在です。
また、これまでに数多くの賞を受賞しているほか、国内ではボランティアとして社会貢献を目的としたプロジェクトにも積極的に参画しています。
豊かな自然と土地の魅力を併せ持つ、稀有な島

宮古島は、沖縄本島から南西に約300kmに位置する、透明度の高い海と豊かな自然に恵まれた南国の島です。
ミヤコブルーと称される美しい海は、時間帯や光の角度によって表情を変え、今なお国内外の多くの人々を魅了し続けています。
島内には白砂のビーチが点在し、シュノーケリングやダイビングなどのマリンアクティビティに加え、ゆったりと流れる島時間の中で、心と身体を解きほぐす滞在を楽しむことができます。
伊良部大橋や来間大橋など、海の上を渡る壮大な景観も、この島ならではの象徴的な風景です。
手つかずの自然とともに、脈々と受け継がれてきた独自の文化や伝統、温かな人々とのふれあいも、宮古島の大きな魅力のひとつです。
近年では、島のまちなかに感度の高い飲食店やショップも増え、自然と洗練が心地よく共存する、新たな島の表情も生まれています。
非日常の解放感と、暮らしとしての快適さ。その両方を享受できる稀有な場所として、宮古島は日常から離れ、特別な時間を求める人々に選ばれ続けています。
今後もUMITOは各地に新たな拠点を続々と開発し、“海と共に過ごす別邸”をより多くのお客様にお届けしてまいります。


